Terug
Assortiment Assortiment
Voor 17.30 besteld, morgen in huis*
6 dagen per week geopend
Iedere werkdag bereikbaar van 07.00 - 17.30 uur

fischer Kozijnplug

Product beschrijving
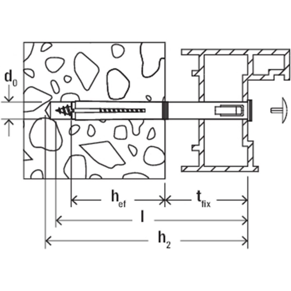
De fischer Kozijnbevestiging F-S is een speciale plug voor een spanningsvrije afstandsmontage van raam- en deurkozijnen. De bevestiging bestaat uit een plug van kwalitatief hoogwaardig nylon en een schroef met verzonken kop met kruiskop-opname van gegalvaniseerd staal. De F-S wordt in de tijdbesparende doorsteekmontage geplaatst. Bij het aandraaien van de schroef wordt de met glasvezel versterkte kunststof conus in de huls getrokken, spreidt open en spant deze tegen de wand van het boorgat. Zo wordt het kozijn spanningsvrij in massieve en geperforeerde bouwmaterialen bevestigd.
De fischer Kozijnbevestiging F-S is een speciale plug voor een spanningsvrije afstandsmontage van raam- en deurkozijnen. De bevestiging bestaat uit een plug van kwalitatief hoogwaardig nylon en een schroef met verzonken kop met kruiskop-opname van gegalvaniseerd staal. De F-S wordt in de tijdbesparende doorsteekmontage geplaatst. Bij het aandraaien van de schroef wordt de met glasvezel versterkte kunststof conus in de huls getrokken, spreidt open en spant deze tegen de wand van het boorgat. Zo wordt het kozijn spanningsvrij in massieve en geperforeerde bouwmaterialen bevestigd.
Lees verder

fischer Kozijnplug

Artikelnummer: AAAAADSQTV

Kies je product

Varianten worden geladen
dimerce.variants.table.productnrdimerce.variants.table.eandimerce.variants.table.artikelnrlengte (plug)klembereikdimerce.variants.table.price.perBeschikbaarheiddimerce.variants.table.unit
7008300400620988626788626100 mm0 - 40 mm
7008305400620988627488627120 mm0 - 60 mm
7008310400620988628188628140 mm0 - 80 mm